Dom rodzinny w Rokietnicy
Domy - bliźniak na sprzedaż, Rokietnica
995 000 PLN
8 924 PLN/m2
Opis
Przedstawiam Państwu wyjątkową ofertę domu rodzinnego w malowniczej Rokietnicy - idealne miejsce dla osób ceniących spokój, wygodę i funkcjonalność. Ten przestronny dom, usytuowany przy cichej i spokojnej ulicy, stanowi doskonałą opcję zarówno dla rodzin.
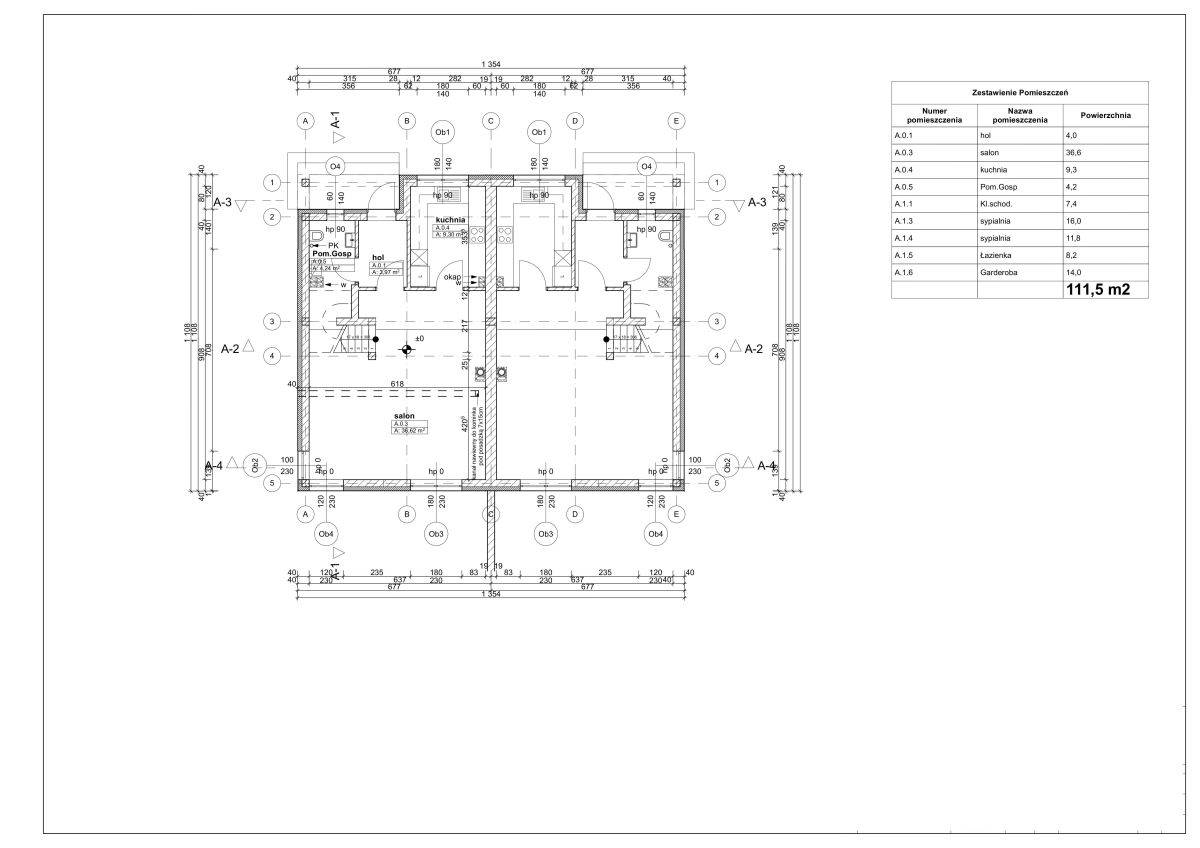
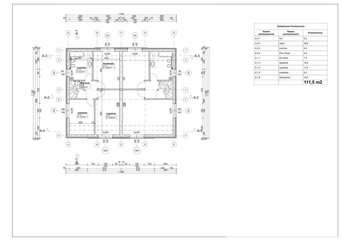
Przestronny dom o powierzchni 111,5 m² został starannie zaprojektowany na dwóch kondygnacjach, zapewniając przestrzeń, funkcjonalność i składa się z : .
- parteru o powierzchni około 54 m² na którym znajdziemy komfortowy salon, jasną kuchnię, pomieszczenia gospodarcze oraz przestronny hol - wszystko gotowe do codziennego użytkowania.
- I piętra z dwoma dużymi pokojami oraz przestronną, dobrze doświetloną łazienka. Istnieje możliwość przywrócenia pierwotnego układu z trzema osobnymi pokojami, co pozwala na dostosowanie przestrzeni do własnych potrzeb.
Dodatkowo, na poddaszu użytkowym znajduje się przestrzeń, która może pełnić funkcję piwnicy lub magazynu.
Wszystkie niezbędne media - woda, prąd oraz gaz - są rozprowadzone na terenie nieruchomości, zapewniając pełną funkcjonalność domu.
Działka o powierzchni 414 m² jest częściowo zagospodarowana, wyposażona w liczne nasadzenia drzew i roślin ozdobnych, co tworzy przyjemną, zieloną przestrzeń do relaksu i wypoczynku na świeżym powietrzu.
Lokalizacja Spokojna, cicha ulica w Rokietnicy zapewnia komfort codziennego życia, a jednocześnie w niedalekiej odległości znajduje się centrum miejscowości z pełnym zapleczem sklepów i punktów usługowych.
W samej Rokietnicy funkcjonują przedszkola, szkoły oraz przychodnia lekarza rodzinnego, co czyni tę lokalizację idealnym miejscem dla rodzin.
Dla osób ceniących szybki dojazd, w pobliżu znajduje się stacja kolejowa, a trasa S11 zapewnia sprawny wyjazd w kierunku Poznania i autostrady A2, umożliwiając komfortowe przemieszczanie się zarówno w mieście, jak i poza nim.
Warunki sprzedaży obejmują termin wydania od 3 do 6 miesięcy. Cena nieruchomości wynosi 995 000 zł. Księga wieczysta jest wolna od obciążeń, co gwarantuje bezpieczną transakcję.
Agent prowadzący Szymon Hełpa
tel. nr 608 295 703, adres mailowy : szymon.helpa@nieruchomosciwielkopolski.pl
Oferta nr 55710868 wysłana z systemu LocumNet Online
Przestronny dom o powierzchni 111,5 m² został starannie zaprojektowany na dwóch kondygnacjach, zapewniając przestrzeń, funkcjonalność i składa się z : .
- parteru o powierzchni około 54 m² na którym znajdziemy komfortowy salon, jasną kuchnię, pomieszczenia gospodarcze oraz przestronny hol - wszystko gotowe do codziennego użytkowania.
- I piętra z dwoma dużymi pokojami oraz przestronną, dobrze doświetloną łazienka. Istnieje możliwość przywrócenia pierwotnego układu z trzema osobnymi pokojami, co pozwala na dostosowanie przestrzeni do własnych potrzeb.
Dodatkowo, na poddaszu użytkowym znajduje się przestrzeń, która może pełnić funkcję piwnicy lub magazynu.
Wszystkie niezbędne media - woda, prąd oraz gaz - są rozprowadzone na terenie nieruchomości, zapewniając pełną funkcjonalność domu.
Działka o powierzchni 414 m² jest częściowo zagospodarowana, wyposażona w liczne nasadzenia drzew i roślin ozdobnych, co tworzy przyjemną, zieloną przestrzeń do relaksu i wypoczynku na świeżym powietrzu.
Lokalizacja Spokojna, cicha ulica w Rokietnicy zapewnia komfort codziennego życia, a jednocześnie w niedalekiej odległości znajduje się centrum miejscowości z pełnym zapleczem sklepów i punktów usługowych.
W samej Rokietnicy funkcjonują przedszkola, szkoły oraz przychodnia lekarza rodzinnego, co czyni tę lokalizację idealnym miejscem dla rodzin.
Dla osób ceniących szybki dojazd, w pobliżu znajduje się stacja kolejowa, a trasa S11 zapewnia sprawny wyjazd w kierunku Poznania i autostrady A2, umożliwiając komfortowe przemieszczanie się zarówno w mieście, jak i poza nim.
Warunki sprzedaży obejmują termin wydania od 3 do 6 miesięcy. Cena nieruchomości wynosi 995 000 zł. Księga wieczysta jest wolna od obciążeń, co gwarantuje bezpieczną transakcję.
Agent prowadzący Szymon Hełpa
tel. nr 608 295 703, adres mailowy : szymon.helpa@nieruchomosciwielkopolski.pl
Oferta nr 55710868 wysłana z systemu LocumNet Online
Szczegóły
| Numer oferty | 55710868 |
| Typ oferty | Domy - bliźniak |
| Rodzaj transakcji | Sprzedaż |
| Cena | 995 000 PLN |
| Cena za m2 | 8 924 PLN |
| Liczba pokoi | 4 |
| Piętro | Parter |
| Liczba pięter | 1 |
| Powierzchnia | 112 m2 |
| Powierzchnia działki | 414 m2 |
| Miejscowość | Rokietnica |
| Województwo | WIELKOPOLSKIE |
| Powiat | poznański |
| Gmina | Rokietnica |
| Rok budowy | 2017 |
|
Szymon Hełpa
|
| 608295703 |
| szymon.helpa@nieruchomosciwielkopolski.pl |
Nieruchomości Wielkopolski - Pośrednictwo Sp. z o.o.
Odwiedź nasze biuro i opowiedz nam o Twoich oczekiwaniach!Adres naszego biura
ul. Garbary 53, 61-869 PoznańZadzwoń do nas
Znajdziemy dla Ciebie interesującą ofertę, która będzie dostosowana do Twoich wymagań.Oferta wyświetlona 11 razy
CHCESZ DOWIEDZIEĆ SIĘ WIĘCEJ?













