Mieszkanie w Premium lokalizacji
Mieszkanie na sprzedaż, Poznań, Stare Miasto
899 000 PLN
11 409 PLN/m2
Opis
Przedstawione wizualizacje nie stanowią oferty w rozumieniu Kodeksu cywilnego.
Przedstawiamy wyjątkową ofertę sprzedaży eleganckiego mieszkania położonego w prestiżowej i spokojnej dzielnicy na Wzgórzu Św. Wojciecha w Poznaniu. Ta nieruchomość znajduje się w samym sercu miasta, zaledwie kilka minut spaceru od urokliwego Starego Rynku, co czyni ją idealnym wyborem dla osób ceniących komfort, wysoką jakość życia oraz doskonałą lokalizację.
Wnętrza tego apartamentu zostały starannie zaprojektowane i wizualizowane przez doświadczonego architekta wnętrz, na podstawie dokładnych pomiarów. Efektem jest elegancka i harmonijna aranżacja, którą można w pełni przejąć i zrealizować według przedstawionych wizji, zapewniając sobie stylowy i funkcjonalny wystrój od razu po zakupie.
Lokalizacja to prawdziwy atut tej nieruchomości. Zaledwie kilka minut spaceru dzieli mieszkanie od Starego Rynku, muzeów, restauracji, sklepów, punktów usługowych oraz Parku Cytadela. Doskonała komunikacja miejska zapewnia szybki dostęp do kluczowych instytucji, takich jak sądy, prokuratura, Urząd Miasta czy Uniwersytet SWPS, co czyni tę ofertę jeszcze bardziej atrakcyjną.
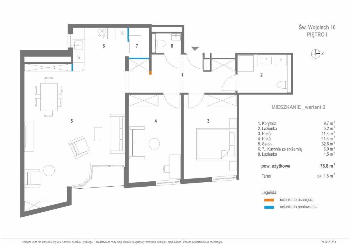
Mieszkanie o powierzchni 78,80 m² znajduje się na pierwszym piętrze kameralnego budynku z windą oraz podziemną halą garażową. W budynku dominują biura i kancelarie prawne, co dodatkowo podkreśla prestiż i ekskluzywność okolicy. W skład nieruchomości wchodzi:
Cena tej wyjątkowej nieruchomości to 899.000,00 zł. Dla zainteresowanych dostępne jest również wykupienie miejsca parkingowego w hali garażowej, posiadającego odrębną księgę wieczystą, co zapewnia wygodę i bezpieczeństwo.
Mieszkanie jest dostępne od zaraz, gotowe do wprowadzenia lub adaptacji według własnych potrzeb, co czyni tę ofertę jeszcze bardziej atrakcyjną.
Nie zwlekaj! Skontaktuj się z nami już dziś:
Szymon Hełpa, tel. 608 295 703
E-mail: szymon.helpa@nieruchomosciwielkopolski.pl
To nieruchomość, która spełni oczekiwania nawet najbardziej wymagających!
Oferta nr 55560868 wysłana z systemu LocumNet Online
Przedstawiamy wyjątkową ofertę sprzedaży eleganckiego mieszkania położonego w prestiżowej i spokojnej dzielnicy na Wzgórzu Św. Wojciecha w Poznaniu. Ta nieruchomość znajduje się w samym sercu miasta, zaledwie kilka minut spaceru od urokliwego Starego Rynku, co czyni ją idealnym wyborem dla osób ceniących komfort, wysoką jakość życia oraz doskonałą lokalizację.
Wnętrza tego apartamentu zostały starannie zaprojektowane i wizualizowane przez doświadczonego architekta wnętrz, na podstawie dokładnych pomiarów. Efektem jest elegancka i harmonijna aranżacja, którą można w pełni przejąć i zrealizować według przedstawionych wizji, zapewniając sobie stylowy i funkcjonalny wystrój od razu po zakupie.
Lokalizacja to prawdziwy atut tej nieruchomości. Zaledwie kilka minut spaceru dzieli mieszkanie od Starego Rynku, muzeów, restauracji, sklepów, punktów usługowych oraz Parku Cytadela. Doskonała komunikacja miejska zapewnia szybki dostęp do kluczowych instytucji, takich jak sądy, prokuratura, Urząd Miasta czy Uniwersytet SWPS, co czyni tę ofertę jeszcze bardziej atrakcyjną.
Mieszkanie o powierzchni 78,80 m² znajduje się na pierwszym piętrze kameralnego budynku z windą oraz podziemną halą garażową. W budynku dominują biura i kancelarie prawne, co dodatkowo podkreśla prestiż i ekskluzywność okolicy. W skład nieruchomości wchodzi:
- przestronny salon z aneksem kuchennym,
- dwa niezależne, komfortowe pokoje,
- funkcjonalna łazienka i osobne WC,
- praktyczny korytarz.
Cena tej wyjątkowej nieruchomości to 899.000,00 zł. Dla zainteresowanych dostępne jest również wykupienie miejsca parkingowego w hali garażowej, posiadającego odrębną księgę wieczystą, co zapewnia wygodę i bezpieczeństwo.
Mieszkanie jest dostępne od zaraz, gotowe do wprowadzenia lub adaptacji według własnych potrzeb, co czyni tę ofertę jeszcze bardziej atrakcyjną.
Nie zwlekaj! Skontaktuj się z nami już dziś:
Szymon Hełpa, tel. 608 295 703
E-mail: szymon.helpa@nieruchomosciwielkopolski.pl
To nieruchomość, która spełni oczekiwania nawet najbardziej wymagających!
Oferta nr 55560868 wysłana z systemu LocumNet Online
Szczegóły
| Numer oferty | 55560868 |
| Typ oferty | Mieszkanie |
| Rodzaj transakcji | Sprzedaż |
| Cena | 899 000 PLN |
| Cena za m2 | 11 409 PLN |
| Liczba pokoi | 3 |
| Piętro | 1 |
| Liczba pięter | 4 |
| Powierzchnia | 79 m2 |
| Miejscowość | Poznań |
| Dzielnica | Stare Miasto |
| Ulica/Osiedle | Wzgórze Świętego Wojciecha |
| Województwo | WIELKOPOLSKIE |
| Powiat | Poznań m. |
| Gmina | Poznań M. |
| Własność | własność |
| Rok budowy | 1995 |
| Ogrzewanie | co miejskie |
| Balkon | Tak |
| Garaż | pod budynkiem |
| Metraż kuchni | 5 m2 |
|
Szymon Hełpa
|
| 608295703 |
| szymon.helpa@nieruchomosciwielkopolski.pl |
Nieruchomości Wielkopolski - Pośrednictwo Sp. z o.o.
Odwiedź nasze biuro i opowiedz nam o Twoich oczekiwaniach!Adres naszego biura
ul. Garbary 53, 61-869 PoznańZadzwoń do nas
Znajdziemy dla Ciebie interesującą ofertę, która będzie dostosowana do Twoich wymagań.Oferta wyświetlona 66 razy
CHCESZ DOWIEDZIEĆ SIĘ WIĘCEJ?











