Pompa CiepŁa | Podłogówka !!!
Dom wolnostojący na sprzedaż, Kamieniec Wrocławski
870 000 PLN
6 464 PLN/m2
Opis
OKAZJA! PROMOCYJNA CENA
ŚWIETNA LOIKALIZACJA!
BEZ PROWIZJI! BEZ PCC!
ZAKUP OD DEWELOPERA!
Gorąco polecam dom wolnostojący położony w gminie Czernica.
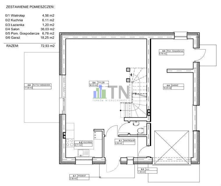
Na pierwszej kondygnacji znajduje się:
- wiatrołap 4,56 mkw
- kuchnia 6,11 mkw
- łazienka 1,20 mkw
- salon 36,03 mkw
- pomieszczenie gospodarcze 6,78 mkw
- garaż 18,25 mkw
Razem 72,93 mkw
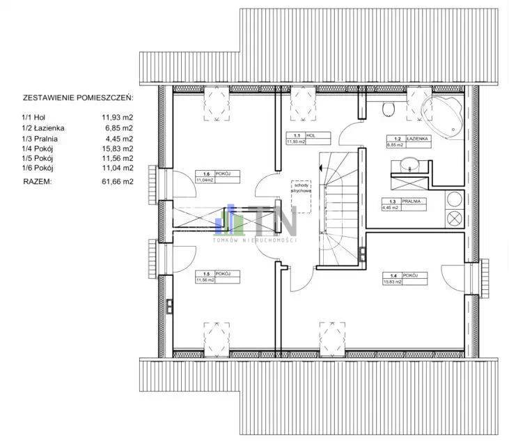
Na poddaszu:
- hall 11,93 mkw
- łazienka 6,85 mkw
- pralnia 4,45 mkw
- pokój 15,83 mkw
- pokój 11,56 mkw
- pokój 11,04 mkw
Razem 61,66 mkw
Standard deweloperski:
- ławy fundamentowe żelbetowe
- ściany fundamentowe bloczek betonowy, izolacja, piasek,
- ściany konstrukcyjne bloczek z betonu komórkowego 24 cm,
- ściany zewnętrzne docieplone styropianem gr 20 cm,
- ściany działowe parteru i piętra bloczek z betonu komórkowego 18 i 12 cm.
- strop monolityczny,
- dach więźba dachowa, folia paroizolacyjna, dachówka ceramiczna w kolorze antracyt docieplenie dachu wełna mineralna 30 cm, rynny i opierzenie rynny z blachy ocynkowanej w kolorze szarym/grafitowym,
-stolarka okienna: profil INTEGRO w kolorze złoty dąb 70mm
-rolety zewnętrzne z skrzynkami: na parterze i piętrze
- elewacja tynk silikonowy, jasny,
- parapety parapety zewnętrzne ,
- taras wylewany / kostka,
- instalacja elektryczna montaż tablicy głównej, zasilanie trójfazowe do kuchni,pompy ciepła oraz garażu, biały montaż, gniazdko RTV w salonie,
- instalacja wodna, kanalizacyjna, co rury aluplex, pcv,
- ogrzewanie podłogowe, pompa ciepła nibe - pompa powietrzna 6 KW, splitowa, zasobnik na wodę ciepłą 180 litrów - zintegrowana kotłownia BA SVM - 220 - Biavar, z grzałką elektryczną,
- drzwi wejściowe drzwi wejściowe Wikęd, pełne, koloru szarego,
- brama garażowa napęd mechaniczny
- tynki wewnętrzne gipsowe III kategorii
- podjazd i podejście kostka betonowa, betard,
- ogrodzenie tył i bok siatka panelowa,
Media: woda, prąd, kanalizacja
Termin realizacji IV KW 2025r
+Nowo powstały zespół przedszkolno-szkolny na ponad 500 dzieci w Dobrzykowicach,szkoła podstawowa w Czernicy, Kamieńcu Wrocławskim oraz Chrząstawie Wielkiej
+ Przedszkola prywatne oraz publiczne z bardzo rozbudowanym programemzlokalizowane między innymi w Kamieńcu Wrocławskim, Dobrzykowicach, Czernicy
+ N - Park w Łanach (mi. Media Expert, Biedronka, Jysk, Pepco, KFC, stacjabenzynowa itp.
+ Centrum handlowe w Dobrzykowicach
+ Hala sportowa, klub fitness z siłownią, sauna
+ Restauracje z regionalnym browarem w Chrząstawie Wielkiej,
+ Hotel z restauracją w Kamieńcu,
+ kilka innych restauracji/pizzeri/sushi w okolicy,
+ Trzy apteki w okolicy, zakład opieki zdrowotnej w Kamieńcu i Czernicy.
+ Wiele sklepów w każdej miejscowości - między innymi Netto, Chata Polska,Dino, stacja Orlen, Mrówka
+ Bardzo dobry dojazd do Wrocławia (docelowo dwie trasy kolejowe), wewnętrznasieć bezpłatnych autobusów, autobusy podmiejskie, PKSy, Polbusy itp.
+ wiele alternatywnych możliwości wjazdu do Wrocławia!
W ramach usługi pośrednictwa dla naszych klientów oferujemy kompleksowedoradztwo finansowe,
pomagamy w procesie pozyskania kredytu na zakup nieruchomości.
Zdajemy sobie doskonale sprawę, że decyzje odnośnie wyboru korzystnej ofertybankowej
oraz formalności związane z uzyskaniem kredytu często stanowią dużą uciążliwośćdla klientów.
Pośrednik odpowiedzialny zawodowo Ewa Tomków
licencja 5920
Gorąco polecam
Ewa Tomków
509474999,
516181723,
Więcej ofert na
to m k o w n i e r u c h o m o s c i . p l
Dla naszych klientów przygotowaliśmy RABAT w Leroy Merlin - 10%
Zamieszczone na naszych stronach oferty nie stanowią oferty w rozumieniuKodeksu Cywilnego,
a dane w nich zawarte mają jedynie charakter informacyjny które mogą uleczmianie
Oferta nr 196620345 wysłana z systemu LocumNet Online
ŚWIETNA LOIKALIZACJA!
BEZ PROWIZJI! BEZ PCC!
ZAKUP OD DEWELOPERA!
Gorąco polecam dom wolnostojący położony w gminie Czernica.
Na pierwszej kondygnacji znajduje się:
- wiatrołap 4,56 mkw
- kuchnia 6,11 mkw
- łazienka 1,20 mkw
- salon 36,03 mkw
- pomieszczenie gospodarcze 6,78 mkw
- garaż 18,25 mkw
Razem 72,93 mkw
Na poddaszu:
- hall 11,93 mkw
- łazienka 6,85 mkw
- pralnia 4,45 mkw
- pokój 15,83 mkw
- pokój 11,56 mkw
- pokój 11,04 mkw
Razem 61,66 mkw
Standard deweloperski:
- ławy fundamentowe żelbetowe
- ściany fundamentowe bloczek betonowy, izolacja, piasek,
- ściany konstrukcyjne bloczek z betonu komórkowego 24 cm,
- ściany zewnętrzne docieplone styropianem gr 20 cm,
- ściany działowe parteru i piętra bloczek z betonu komórkowego 18 i 12 cm.
- strop monolityczny,
- dach więźba dachowa, folia paroizolacyjna, dachówka ceramiczna w kolorze antracyt docieplenie dachu wełna mineralna 30 cm, rynny i opierzenie rynny z blachy ocynkowanej w kolorze szarym/grafitowym,
-stolarka okienna: profil INTEGRO w kolorze złoty dąb 70mm
-rolety zewnętrzne z skrzynkami: na parterze i piętrze
- elewacja tynk silikonowy, jasny,
- parapety parapety zewnętrzne ,
- taras wylewany / kostka,
- instalacja elektryczna montaż tablicy głównej, zasilanie trójfazowe do kuchni,pompy ciepła oraz garażu, biały montaż, gniazdko RTV w salonie,
- instalacja wodna, kanalizacyjna, co rury aluplex, pcv,
- ogrzewanie podłogowe, pompa ciepła nibe - pompa powietrzna 6 KW, splitowa, zasobnik na wodę ciepłą 180 litrów - zintegrowana kotłownia BA SVM - 220 - Biavar, z grzałką elektryczną,
- drzwi wejściowe drzwi wejściowe Wikęd, pełne, koloru szarego,
- brama garażowa napęd mechaniczny
- tynki wewnętrzne gipsowe III kategorii
- podjazd i podejście kostka betonowa, betard,
- ogrodzenie tył i bok siatka panelowa,
Media: woda, prąd, kanalizacja
Termin realizacji IV KW 2025r
+Nowo powstały zespół przedszkolno-szkolny na ponad 500 dzieci w Dobrzykowicach,szkoła podstawowa w Czernicy, Kamieńcu Wrocławskim oraz Chrząstawie Wielkiej
+ Przedszkola prywatne oraz publiczne z bardzo rozbudowanym programemzlokalizowane między innymi w Kamieńcu Wrocławskim, Dobrzykowicach, Czernicy
+ N - Park w Łanach (mi. Media Expert, Biedronka, Jysk, Pepco, KFC, stacjabenzynowa itp.
+ Centrum handlowe w Dobrzykowicach
+ Hala sportowa, klub fitness z siłownią, sauna
+ Restauracje z regionalnym browarem w Chrząstawie Wielkiej,
+ Hotel z restauracją w Kamieńcu,
+ kilka innych restauracji/pizzeri/sushi w okolicy,
+ Trzy apteki w okolicy, zakład opieki zdrowotnej w Kamieńcu i Czernicy.
+ Wiele sklepów w każdej miejscowości - między innymi Netto, Chata Polska,Dino, stacja Orlen, Mrówka
+ Bardzo dobry dojazd do Wrocławia (docelowo dwie trasy kolejowe), wewnętrznasieć bezpłatnych autobusów, autobusy podmiejskie, PKSy, Polbusy itp.
+ wiele alternatywnych możliwości wjazdu do Wrocławia!
W ramach usługi pośrednictwa dla naszych klientów oferujemy kompleksowedoradztwo finansowe,
pomagamy w procesie pozyskania kredytu na zakup nieruchomości.
Zdajemy sobie doskonale sprawę, że decyzje odnośnie wyboru korzystnej ofertybankowej
oraz formalności związane z uzyskaniem kredytu często stanowią dużą uciążliwośćdla klientów.
Pośrednik odpowiedzialny zawodowo Ewa Tomków
licencja 5920
Gorąco polecam
Ewa Tomków
509474999,
516181723,
Więcej ofert na
to m k o w n i e r u c h o m o s c i . p l
Dla naszych klientów przygotowaliśmy RABAT w Leroy Merlin - 10%
Zamieszczone na naszych stronach oferty nie stanowią oferty w rozumieniuKodeksu Cywilnego,
a dane w nich zawarte mają jedynie charakter informacyjny które mogą uleczmianie
Oferta nr 196620345 wysłana z systemu LocumNet Online
Szczegóły
| Numer oferty | 196620345 |
| Typ oferty | Dom wolnostojący |
| Rodzaj transakcji | Sprzedaż |
| Cena | 870 000 PLN |
| Cena za m2 | 6 464 PLN |
| Liczba pokoi | 4 |
| Piętro | Parter |
| Liczba pięter | 1 |
| Powierzchnia | 135 m2 |
| Powierzchnia działki | 470 m2 |
| Miejscowość | Kamieniec Wrocławski |
| Województwo | DOLNOŚLĄSKIE |
| Powiat | wrocławski |
| Gmina | Czernica |
| Rok budowy | 2025 |
|
Ewa Tomków
nr licencji: 5920 |
| 509474999 |
| ewa.tomkow@wp.pl |
Ewa Tomków Nieruchomości
Odwiedź nasze biuro i opowiedz nam o Twoich oczekiwaniach!Adres naszego biura
ul. Pabianicka 18/2, WrocławZadzwoń do nas
Znajdziemy dla Ciebie interesującą ofertę, która będzie dostosowana do Twoich wymagań.Oferta wyświetlona 1 razy
CHCESZ DOWIEDZIEĆ SIĘ WIĘCEJ?



















