Piękny apartament z tarasem i widokiem na Wartę
Mieszkanie na sprzedaż, Poznań, Nowe Miasto
917 363 PLN
12 750 PLN/m2
Opis
Kontakt i prezentacja: Katarzyna Trębacz - tel. 791 444 630
Oferta bez prowizji!
Komfortowe, czteropokojowe mieszkanie położone w malowniczej okolicy nad Wartą. To miejsce, które zachwyci każdego miłośnika przyrody i spokoju, oferując piękne widoki na rzekę oraz otaczającą zielenią (zdjęcia w galerii). Mieszkanie w podwyższonym stanie deweloperskim - w tym m.in. wyszpachlowane ściany i sufity.
W skład nieruchomości wchodzą:
Lokalizacja:
Osiedle jest wkomponowane w piękne tereny zielone, z bezpośrednim zejściem nad Wartę - idealne na spacery, relaks na ławkach przy wodzie i aktywność na świeżym powietrzu. Warta potrafi oczarować o każdej porze roku, a bliskość lasów i jezior umożliwia pełne wykorzystanie rekreacyjnych możliwości okolic Poznania. Spacer wśród dębów rogalińskich, wycieczka do lasów w Puszczykowie, smakowite lody przy przejeździe kolejowym czy zbieranie kasztanów w Dębinie - to tylko niektóre z atrakcji dostępnych na wyciągnięcie ręki.
Dla rodzin z dziećmi - na terenie osiedla znajduje się plac zabaw oraz teren rekreacyjny. Młoda para, single lub osoby pracujące zdalnie? To miejsce sprawdzi się idealnie - ciche, spokojne i pełne możliwości integracji z naturą.
Komunikacja:
Bliskość głównych tras dojazdowych (S11 A2). W pobliżu dostępny jest przystanek autobusowy linii 158, 194 oraz 247. Na Starołęce znajduje się także pętla tramwajowa linii 4, 11, 12, 13 oraz dworzec kolejowy, co zapewnia sprawny dojazd do centrum Poznania. Osiedle jest w niedalekiej odległości od Ronda Starołęka, a w okolicy znajdziesz szkoły, przedszkola, sklepy (w tym Lidl) oraz przychodnie - wszystko, czego potrzebujesz na co dzień.
Zapraszamy do kontaktu i obejrzenia tego wyjątkowego mieszkania!
Oferta nr 1179200880 wysłana z systemu LocumNet Online
Oferta bez prowizji!
Komfortowe, czteropokojowe mieszkanie położone w malowniczej okolicy nad Wartą. To miejsce, które zachwyci każdego miłośnika przyrody i spokoju, oferując piękne widoki na rzekę oraz otaczającą zielenią (zdjęcia w galerii). Mieszkanie w podwyższonym stanie deweloperskim - w tym m.in. wyszpachlowane ściany i sufity.
W skład nieruchomości wchodzą:
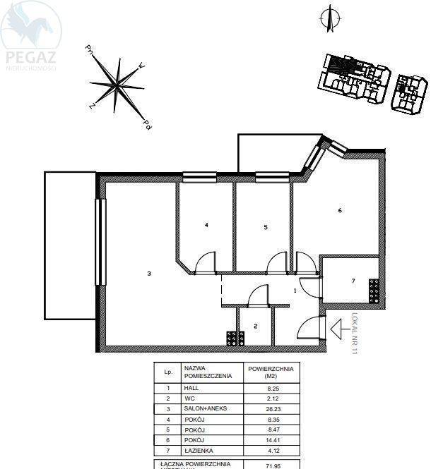
- Przestronny salon z dużymi panoramicznymi przeszkleniami od strony rzeki i balkonu, z którego można wyjść na dużą loggię - idealne miejsce na poranną kawę lub wieczorne relaks
- Trzy ustawne sypialnie o powierzchniach: 14,41 m², 8,47 m² i 8,35 m², zapewniające komfort i prywatność
- Łazienka o powierzchni 4,12 m²
- Osobna toaleta o powierzchni 2,12 m²
Lokalizacja:
Osiedle jest wkomponowane w piękne tereny zielone, z bezpośrednim zejściem nad Wartę - idealne na spacery, relaks na ławkach przy wodzie i aktywność na świeżym powietrzu. Warta potrafi oczarować o każdej porze roku, a bliskość lasów i jezior umożliwia pełne wykorzystanie rekreacyjnych możliwości okolic Poznania. Spacer wśród dębów rogalińskich, wycieczka do lasów w Puszczykowie, smakowite lody przy przejeździe kolejowym czy zbieranie kasztanów w Dębinie - to tylko niektóre z atrakcji dostępnych na wyciągnięcie ręki.
Dla rodzin z dziećmi - na terenie osiedla znajduje się plac zabaw oraz teren rekreacyjny. Młoda para, single lub osoby pracujące zdalnie? To miejsce sprawdzi się idealnie - ciche, spokojne i pełne możliwości integracji z naturą.
Komunikacja:
Bliskość głównych tras dojazdowych (S11 A2). W pobliżu dostępny jest przystanek autobusowy linii 158, 194 oraz 247. Na Starołęce znajduje się także pętla tramwajowa linii 4, 11, 12, 13 oraz dworzec kolejowy, co zapewnia sprawny dojazd do centrum Poznania. Osiedle jest w niedalekiej odległości od Ronda Starołęka, a w okolicy znajdziesz szkoły, przedszkola, sklepy (w tym Lidl) oraz przychodnie - wszystko, czego potrzebujesz na co dzień.
Zapraszamy do kontaktu i obejrzenia tego wyjątkowego mieszkania!
Oferta nr 1179200880 wysłana z systemu LocumNet Online
Szczegóły
| Numer oferty | 1179200880 |
| Typ oferty | Mieszkanie |
| Rodzaj transakcji | Sprzedaż |
| Cena | 917 363 PLN |
| Cena za m2 | 12 750 PLN |
| Liczba pokoi | 4 |
| Piętro | 2 |
| Liczba pięter | 2 |
| Powierzchnia | 72 m2 |
| Miejscowość | Poznań |
| Dzielnica | Nowe Miasto |
| Ulica/Osiedle | Starołęcka |
| Województwo | WIELKOPOLSKIE |
| Powiat | Poznań m. |
| Gmina | Poznań M. |
| Rok budowy | 2025 |
|
Katarzyna Trębacz
nr licencji: 13446 |
| 791444630 |
| k.trebacz@pegaz.nieruchomosci.pl |
Pegaz Nieruchomości Sp. z o.o.
Odwiedź nasze biuro i opowiedz nam o Twoich oczekiwaniach!Adres naszego biura
ul. Jarochowskiego 53, 60-248 PoznańZadzwoń do nas
Znajdziemy dla Ciebie interesującą ofertę, która będzie dostosowana do Twoich wymagań.Oferta wyświetlona 55 razy
CHCESZ DOWIEDZIEĆ SIĘ WIĘCEJ?
















