2-pokoje na I piętrze, Kościuszki
Mieszkanie na sprzedaż, Zielona Góra, Osiedle Jana Kilińskiego
379 000 PLN
7 626 PLN/m2
Opis
TYLKO U NAS - 2-POKOJOWE MIESZKANIE NA PIERWSZYM PIĘTRZE PRZY ULICY KOŚCIUSZKI
Oferty tylko w naszym biurze, dysponujemy kluczami
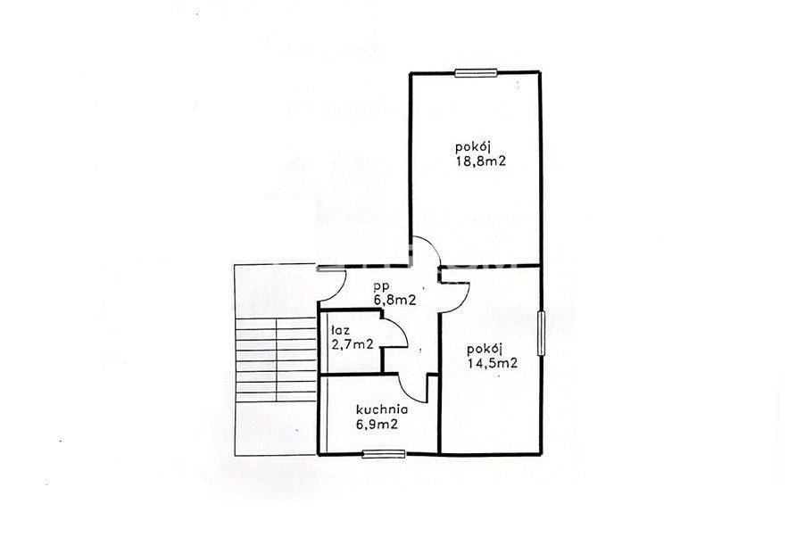
Mieszkanie o pow.49,70 m2 położone jest na I piętrze niskiego 2-piętrowego bloku przy ul. Kościuszki. Budynek z 1958 roku wykonany w technologii tradycyjnej z cegły, zarządzany przez wspólnotę mieszkaniową.
Mieszkanie posiada mały balkon oraz piwnicę o pow. ok. 4,10 m2 .
UKŁAD:
POKÓJ NR 1: 18,80 m2, jasny, narożny salon z dwoma oknami i wyjściem na niewielki, słoneczny balkon.
POKÓJ NR 2: 14,50 m2, sypialnia.
KUCHNIA: 6,90 m2, oddzielna, jasna, umeblowana i wyposażona w lodówkę, małą zmywarkę, kuchenkę gazową z piekarnikiem elektrycznym, pochłaniacz.
ŁAZIENKA: 2,70 m2, z wanną, umywalką, grzejnikiem drabinkowym, pralką.
PRZEDPOKÓJ: 6,80 m2, z szafą wnękową przy kuchni i pawlaczem nad wejściem do mieszkania.
STANDARD WYKOŃCZENIA: Okna PCV, okno balkonowe posiada roletę zewnętrzną sterowaną automatycznie. Na podłogach w pokojach i przedpokoju panele. W kuchni na podłodze płytki. Łazienka w glazurze. Ściany malowane oraz w tapecie, w kuchni częściowo glazura. Drzwi wejściowe nowego typu. Drzwi wewnętrzne do kuchni nowe, do pozostałych pomieszczeń stare z przeszkleniami. Nowe grzejniki członowe w salonie, w sypialni i kuchni grzejniki żeliwne. Na balkonie płytki. Ciepła woda i ogrzewanie w bloku z sieci miejskiej (węzeł cieplny w piwnicy).
OPŁATY ZWIĄZANE Z UTRZYMANIEM MIESZKANIA: 605,92 zł miesięcznie przy jednej osobie, w tym zaliczka na centralne ogrzewanie, wynagrodzenie zarządcy, fundusz remontowy (74,55 zł). Dodatkowo w czynszu woda i śmieci (37 zł od osoby), a poza czynszem prąd i gaz (jedynie do kuchenki, w łazience nie ma już junkersa).
LOKALIZACJA: budynek położony na starszym zielonogórskim osiedlu, budowanym na przełomie lat 50/60, ale dzięki temu dobrze zagospodarowanym (lepiej niż nie jedno nowe osiedle). W sąsiedztwie znajduje się szkoła podstawowa, liceum ogólnokształcące, sklepy (w tym dyskont, piekarnia), przychodnia lekarska (ok.700 metrów). Przystanek MZK z odjazdami w stronę centrum znajduje się w odległości 130 metrów. Spacer w okolice Planetarium Wenus zajmie ok. 17 minut, a do galerii handlowej Focus Mall ok.20 minut.
WALORY MIESZKANIA :
1. WYGODNE, USTAWNE I JASNE MIESZKANIE 2-POKOJOWE.
2. I PIĘTRO W NISKIM BLOKU.
3. BUDYNEK Z CEGŁY.
4. BARDZO DOBRA LOKALIZACJA - BLISKO DO CENTRUM, NIEDALEKO PRZYSTANEK MZK.
5. W OKOLICY TERENY ZIELONE NP. PARK PIASTOWSKI.
Agent prowadzący:
Barbara Januszewska-Piróg
tel. 666 663 040
barbara@centrumzg.pl
Więcej ofert na www.centrumZG.pl - zapraszamy!
Powyższy opis ma charakter informacyjny i nie stanowi oferty w rozumieniu przepisów art. 66 § 1. Kodeksu Cywilnego.
Oferta nr 22070648 wysłana z systemu LocumNet Online
Oferty tylko w naszym biurze, dysponujemy kluczami
Mieszkanie o pow.49,70 m2 położone jest na I piętrze niskiego 2-piętrowego bloku przy ul. Kościuszki. Budynek z 1958 roku wykonany w technologii tradycyjnej z cegły, zarządzany przez wspólnotę mieszkaniową.
Mieszkanie posiada mały balkon oraz piwnicę o pow. ok. 4,10 m2 .
UKŁAD:
POKÓJ NR 1: 18,80 m2, jasny, narożny salon z dwoma oknami i wyjściem na niewielki, słoneczny balkon.
POKÓJ NR 2: 14,50 m2, sypialnia.
KUCHNIA: 6,90 m2, oddzielna, jasna, umeblowana i wyposażona w lodówkę, małą zmywarkę, kuchenkę gazową z piekarnikiem elektrycznym, pochłaniacz.
ŁAZIENKA: 2,70 m2, z wanną, umywalką, grzejnikiem drabinkowym, pralką.
PRZEDPOKÓJ: 6,80 m2, z szafą wnękową przy kuchni i pawlaczem nad wejściem do mieszkania.
STANDARD WYKOŃCZENIA: Okna PCV, okno balkonowe posiada roletę zewnętrzną sterowaną automatycznie. Na podłogach w pokojach i przedpokoju panele. W kuchni na podłodze płytki. Łazienka w glazurze. Ściany malowane oraz w tapecie, w kuchni częściowo glazura. Drzwi wejściowe nowego typu. Drzwi wewnętrzne do kuchni nowe, do pozostałych pomieszczeń stare z przeszkleniami. Nowe grzejniki członowe w salonie, w sypialni i kuchni grzejniki żeliwne. Na balkonie płytki. Ciepła woda i ogrzewanie w bloku z sieci miejskiej (węzeł cieplny w piwnicy).
OPŁATY ZWIĄZANE Z UTRZYMANIEM MIESZKANIA: 605,92 zł miesięcznie przy jednej osobie, w tym zaliczka na centralne ogrzewanie, wynagrodzenie zarządcy, fundusz remontowy (74,55 zł). Dodatkowo w czynszu woda i śmieci (37 zł od osoby), a poza czynszem prąd i gaz (jedynie do kuchenki, w łazience nie ma już junkersa).
LOKALIZACJA: budynek położony na starszym zielonogórskim osiedlu, budowanym na przełomie lat 50/60, ale dzięki temu dobrze zagospodarowanym (lepiej niż nie jedno nowe osiedle). W sąsiedztwie znajduje się szkoła podstawowa, liceum ogólnokształcące, sklepy (w tym dyskont, piekarnia), przychodnia lekarska (ok.700 metrów). Przystanek MZK z odjazdami w stronę centrum znajduje się w odległości 130 metrów. Spacer w okolice Planetarium Wenus zajmie ok. 17 minut, a do galerii handlowej Focus Mall ok.20 minut.
WALORY MIESZKANIA :
1. WYGODNE, USTAWNE I JASNE MIESZKANIE 2-POKOJOWE.
2. I PIĘTRO W NISKIM BLOKU.
3. BUDYNEK Z CEGŁY.
4. BARDZO DOBRA LOKALIZACJA - BLISKO DO CENTRUM, NIEDALEKO PRZYSTANEK MZK.
5. W OKOLICY TERENY ZIELONE NP. PARK PIASTOWSKI.
Agent prowadzący:
Barbara Januszewska-Piróg
tel. 666 663 040
barbara@centrumzg.pl
Więcej ofert na www.centrumZG.pl - zapraszamy!
Powyższy opis ma charakter informacyjny i nie stanowi oferty w rozumieniu przepisów art. 66 § 1. Kodeksu Cywilnego.
Oferta nr 22070648 wysłana z systemu LocumNet Online
Szczegóły
| Numer oferty | 22070648 |
| Typ oferty | Mieszkanie |
| Rodzaj transakcji | Sprzedaż |
| Cena | 379 000 PLN |
| Cena za m2 | 7 626 PLN |
| Liczba pokoi | 2 |
| Piętro | 1 |
| Liczba pięter | 2 |
| Powierzchnia | 50 m2 |
| Miejscowość | Zielona Góra |
| Dzielnica | Osiedle Jana Kilińskiego |
| Województwo | LUBUSKIE |
| Powiat | Zielona Góra m. |
| Gmina | Zielona Góra M. |
| Własność | własność |
| Rok budowy | 1958 |
| Ogrzewanie | co miejskie |
| Dojazd | asfaltowa/kostka |
| Balkon | Tak |
| Materiał | cegła |
| Metraż łazienek | 2 m2 |
| Metraż kuchni | 7 m2 |
| Metraż piwnicy | 4 m2 |
| Położony w | w mieście poza centrum |
| Rodzaj okien | nowe plastikowe |
|
Barbara Januszewska-Piróg
|
| 666-663-040 |
| barbara@centrumzg.pl |
Agencja Centrum Nieruchomości
Odwiedź nasze biuro i opowiedz nam o Twoich oczekiwaniach!Adres naszego biura
ul. Żeromskiego 1/3, 65-066 Zielona GóraZadzwoń do nas
Znajdziemy dla Ciebie interesującą ofertę, która będzie dostosowana do Twoich wymagań.Oferta wyświetlona 27 razy
CHCESZ DOWIEDZIEĆ SIĘ WIĘCEJ?


















