Gotowy l Parterowy l Wszystkie Media
Dom wolnostojący na sprzedaż, Miłoszyce
845 000 PLN
6 450 PLN/m2
Opis
GOTOWY !!! SUPER LOKALIZACJA !!!
BEZ PROWIZJI!
BEZ PCC
ZAKUP OD DEWELOPERA!
GOTOWY DO ODBIORU!
Gorąco polecam dom wolnostojący położony w Miłoszycach.
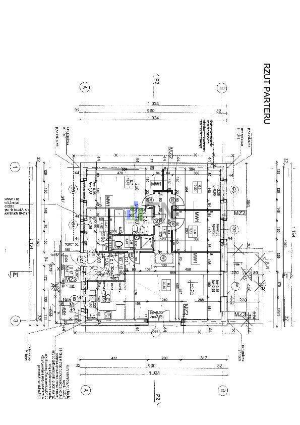
Pomieszczenia użytkowe:
1 . przedsionek 5.00 m²
2 . łazienka 3.00 m²
3 . łazienka 5.36 m²
4 . sypialnia 13.40 m²
5 . sypialnia 10.20 m²
6 . sypialnia 9.12 m²
7 . korytarz 4.97 m²
8 . pokój dzienny 30.82 m²
9 . kuchnia 7.05 m²
10. kotłownia 4.62 m²
= 93.54m²
11. poddasze 39.05 m²
Powierzchnia całkowita domu: 132,62 m²
Wszystkie media: woda, prąd, kanalizacja, gaz, światłowód
Budynek zostanie oddany w stanie deweloperskim, najważniejsze elementy wykończenia:
- ściany zewnętrzne pustak ceramiczny gr. 24 cm + styropian 20 cm + tynk .
- więźba dachowa wykonana z wiązarów, pokryta najwyższej klasy dachówką betonową w kolorze naturalnej czerwieni.
- sufit systemowy, wykończony podwieszoną płytą GK.
- stolarka okienna trzyszybowa, dwukomorowa, z roletami oraz parapetami zewnętrznymi z granitu.
- ogrzewanie gazowe, podłogowe na całej powierzchni domu. Piec jednofunkcyjny, kondensacyjny z zasobnikiem na ciepłą wodę.
- wszystkie media podłączone do budynku z pełnym rozprowadzeniem wewnątrz domu.
W ramach usługi pośrednictwa dla naszych klientów oferujemy kompleksowe doradztwo finansowe,
pomagamy w procesie pozyskania kredytu na zakup nieruchomości.
Zdajemy sobie doskonale sprawę, że decyzje odnośnie wyboru korzystnej oferty bankowej
oraz formalności związane z uzyskaniem kredytu często stanowią dużą uciążliwość dla klientów.
Oferta godna polecenia.
ATRAKCYJNA CENA !!!
Pośrednik odpowiedzialny zawodowo Ewa Tomkow
licencja 5920
Gorąco polecam
Ewa Tomków
509474999
Więcej ofert na www.tomkownieruchomosci.pl
Zamieszczone na naszych stronach oferty nie stanowią oferty w rozumieniu
Kodeksu Cywilnego, a dane w nich zawarte mają jedynie charakter informacyjny
Oferta nr 197850345 wysłana z systemu LocumNet Online
BEZ PROWIZJI!
BEZ PCC
ZAKUP OD DEWELOPERA!
GOTOWY DO ODBIORU!
- pierwsze malowanie
- glazura w łazienkach
- łazienki wyposażone : stelaże WC z obudową, biały montaż - miski toaletowe i umywalkowe, odpływ liniowy, wanna
- glazura na podłodze kuchni
- ogrzewanie gazowe własnym piecem ( jak pokazują ostatnie silne mrozy, to duży atut w kontekście zamarzających pomp ciepła )
- ekonomiczne ogrzewanie podłogowe
- powierzchnia użytkowa do 131m2 ( prosta decyzja administracyjna )
- parter 93m2 + deskowane poddasze 38 m2
- 2 łazienki i 3 sypialnie na parterze
- Salon z aneksem kuchennym o powierzchni 37 m2, doświetlony trzema oknami, w tym duża witryna : wsch/pd/zach
- Kuchnia z oknem
- Wyjście na taras od strony południowej
- Wysokość parteru 2,80m !
- działka 530 m2, z własnym wjazdem, dająca możliwość postawienia garażu
- wysoki standard deweloperski : wysokość kondygnacji parteru 2m80cm, dwie łazienki, rolety sterowane elektrycznie, kamienne parapety wewnętrzne i zewnętrzne, miejsce parkingowe przy budynku, miejsca gościnne na terenie osiedla
- doświetlenie wschód - zachód, wyjście na taras i ekspozycja działki od strony południowej
- osobna księga wieczysta
- ukończony, po odbiorach
Gorąco polecam dom wolnostojący położony w Miłoszycach.
Pomieszczenia użytkowe:
1 . przedsionek 5.00 m²
2 . łazienka 3.00 m²
3 . łazienka 5.36 m²
4 . sypialnia 13.40 m²
5 . sypialnia 10.20 m²
6 . sypialnia 9.12 m²
7 . korytarz 4.97 m²
8 . pokój dzienny 30.82 m²
9 . kuchnia 7.05 m²
10. kotłownia 4.62 m²
= 93.54m²
11. poddasze 39.05 m²
Powierzchnia całkowita domu: 132,62 m²
Wszystkie media: woda, prąd, kanalizacja, gaz, światłowód
Budynek zostanie oddany w stanie deweloperskim, najważniejsze elementy wykończenia:
- ściany zewnętrzne pustak ceramiczny gr. 24 cm + styropian 20 cm + tynk .
- więźba dachowa wykonana z wiązarów, pokryta najwyższej klasy dachówką betonową w kolorze naturalnej czerwieni.
- sufit systemowy, wykończony podwieszoną płytą GK.
- stolarka okienna trzyszybowa, dwukomorowa, z roletami oraz parapetami zewnętrznymi z granitu.
- ogrzewanie gazowe, podłogowe na całej powierzchni domu. Piec jednofunkcyjny, kondensacyjny z zasobnikiem na ciepłą wodę.
- wszystkie media podłączone do budynku z pełnym rozprowadzeniem wewnątrz domu.
W ramach usługi pośrednictwa dla naszych klientów oferujemy kompleksowe doradztwo finansowe,
pomagamy w procesie pozyskania kredytu na zakup nieruchomości.
Zdajemy sobie doskonale sprawę, że decyzje odnośnie wyboru korzystnej oferty bankowej
oraz formalności związane z uzyskaniem kredytu często stanowią dużą uciążliwość dla klientów.
Oferta godna polecenia.
ATRAKCYJNA CENA !!!
Pośrednik odpowiedzialny zawodowo Ewa Tomkow
licencja 5920
Gorąco polecam
Ewa Tomków
509474999
Więcej ofert na www.tomkownieruchomosci.pl
Zamieszczone na naszych stronach oferty nie stanowią oferty w rozumieniu
Kodeksu Cywilnego, a dane w nich zawarte mają jedynie charakter informacyjny
Oferta nr 197850345 wysłana z systemu LocumNet Online
Szczegóły
| Numer oferty | 197850345 |
| Typ oferty | Dom wolnostojący |
| Rodzaj transakcji | Sprzedaż |
| Cena | 845 000 PLN |
| Cena za m2 | 6 450 PLN |
| Liczba pokoi | 4 |
| Piętro | Parter |
| Powierzchnia | 131 m2 |
| Powierzchnia działki | 530 m2 |
| Miejscowość | Miłoszyce |
| Województwo | DOLNOŚLĄSKIE |
| Powiat | oławski |
| Gmina | Jelcz-Laskowice |
| Rok budowy | 2026 |
|
Ewa Tomków
nr licencji: 5920 |
| 509474999 |
| ewa.tomkow@wp.pl |
Ewa Tomków Nieruchomości
Odwiedź nasze biuro i opowiedz nam o Twoich oczekiwaniach!Adres naszego biura
ul. Pabianicka 18/2, WrocławZadzwoń do nas
Znajdziemy dla Ciebie interesującą ofertę, która będzie dostosowana do Twoich wymagań.Oferta wyświetlona 16 razy
CHCESZ DOWIEDZIEĆ SIĘ WIĘCEJ?







